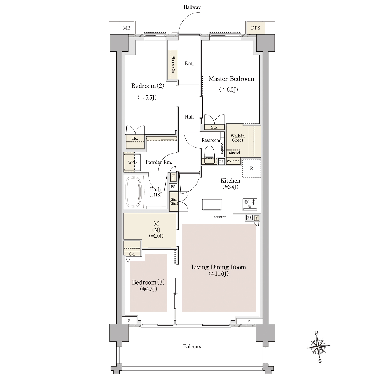
PLAN間取り
B5'
71.40㎡
3LDK+M+WIC
専有防災備蓄倉庫面積/0.41㎡
総専有面積/71.81㎡
バルコニー面積/10.80㎡
総専有面積/71.81㎡
バルコニー面積/10.80㎡
マルチルーム(納戸)を備えた、
3LDK南向きプラン。
床暖房
収納
M:マルチルーム(納戸) WIC:ウォークインクローゼット
-
心地よい南向きにリビング・ダイニングと
洋室(3)の2居室をレイアウト。 -
デッドスペースが少なく空間を効率よく使える
引き戸をすべての洋室で採用。 -
収納やテレワークスペース、家事室など多様に使える、
約2畳のマルチルーム(納戸)をご用意。 -
対面カウンターキッチンと約11畳のリビング、
引き戸を開放すれば洋室(3)も一体利用可能。
※掲載の間取りは計画段階のもので今後変更になる場合がございます。 ※掲載の情報は2023年12月現在のもので今後変更になる場合がございます。 ※掲載の写真は2025年12月に棟内モデルルームを撮影したものです。

